Köln:
Urbanes Solitär-Loft - DAS HAUS im HOF - im BELGISCHEN VIERTEL
Objekt-Nr.: 2255

Eingang Innenhof

Eingang Innenhof

Eingang

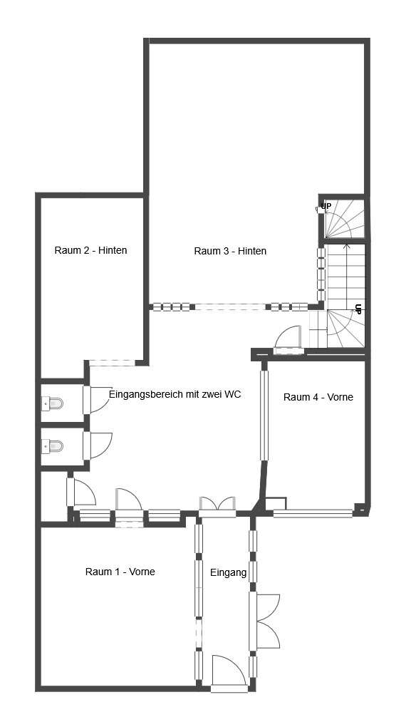
Eingangsbereich mit zwei WC EG

Raum 1 - Vorne - EG

Raum 2 - Hinten - EG

Raum 3 - Hinten - EG

Raum 4 - Vorne - EG

Treppenhaus - 1. OG

Raum 5 Vorne - 1. OG

Raum 6 Hinten - 1. OG

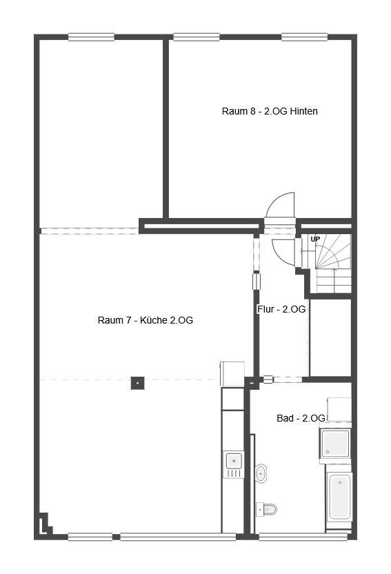
Flur - 2.OG

Raum 7 - 2.OG

Raum 7 - 2.OG / Foto 2

Raum 8 Hinten - 2.OG

Bad 2.OG

Keller

Zugang

Grundriss EG.jpg

Grundriss 1.OG.jpg

Grundriss 2.OG.jpg

Grundriss UG.jpg






















Mietpreis zzgl. NK:
2.650 € pro Monat
Büro-/Praxisfläche ca.:
400 m²
Ideal für Office, Galerie, Atelier oder Showroom
Ihr eigenes Headquarter: Authentisch. Ungeschliffen. Einzigartig.
Hinter der markanten Flügeltür verbirgt sich eine außergewöhnliche Immobilie: Ein autarkes Gewerbehaus im Innenhof, das Sie komplett zur Alleinnutzung mieten. Keine geteilten Flure, keine anderen Mieter im Haus – hier gestalten Sie Ihre ganz eigene Arbeitswelt auf ca. 400 m² Nutzfläche.
Das Objekt besticht durch seinen authentischen Industrial-Look. Mit Deckenhöhen von bis zu 3,20 m, ehrlichen Materialien und einer großzügigen Raumstruktur bieten den perfekten Rahmen für Unternehmen, die Charakter und Individualität suchen. Da Sie das gesamte Gebäude allein bespielen, genießen Sie maximale Freiheit und eine unverwechselbare Identität für Ihr Business.
________________________________________
RAUMAUFTEILUNG
Das Gebäude erstreckt sich über drei Etagen ca. 400 m² Nutzfläche plus Keller. Das Erdgeschoss bildet aufgrund eines Ausbaus die flächenmäßig größte Ebene.…
Erdgeschoss: Empfang & Fokus
Das Erdgeschoss ist das funktionale Herzstück und ideal für Kundenverkehr oder Ausstellungen:
• Entree: Geräumiger Eingangsbereich, perfekt als Empfang, Wartezone oder Showroom.
• Sanitär: Zwei WCs direkt im vorderen Bereich.
• Fläche: Drei separate Räume sowie ein großer Raum
• Erschließung: Das interne Treppenhaus verbindet alle Ebenen vom Gewölbekeller bis zum Dachgeschoss.
1. Obergeschoss: Weitläufiges Arbeiten
Diese Ebene ist geprägt von Licht und Weite. Zwei sehr geräumige Haupträume bieten durch hohe Decken und große Fensterfronten eine erstklassige, konzentrierte Arbeitsatmosphäre.
2. Obergeschoss: Creative Loft & Social Hub
• Work & Create: Ein großzügiger Arbeitsraum und ein ruhiger Rückzugraum zum Hof.
• Social Area: Ein weiterer Raum mit integrierter Einbauküche – ideal als Team-Hub oder für informelle Meetings.
• Bad: Ein voll ausgestattetes Badezimmer mit Badewanne und Dusche.
Untergeschoss: Die Bonus-Fläche
Ein alter Gewölbekeller, direkt über das Treppenhaus erreichbar. Diese Fläche ist nicht in die Hauptnutzfläche eingerechnet und bietet wertvollen Stauraum.
________________________________________
AUSSTATTUNG & HIGHLIGHTS
• Solitär-Status: Ein autarkes Haus – volle Privatsphäre ohne Zimmernachbarn.
• Echter Loft-Charakter: Deckenhöhen bis 3,20 m, offene Balkenlagen und roher Industrie-Charme.
• Lichtdurchflutet: Großflächige Fensterfronten auf allen Ebenen sorgen für natürliche Belichtung.
• Flexibilität: Die Mischung aus beeindruckenden Open-Space-Flächen und separaten Rückzugsräumen erlaubt modernste Nutzungskonzepte.
FAZIT
Dieses Objekt ist eine seltene Gelegenheit für Unternehmen, die ein eigenständiges Gebäude mit Profil suchen. Wer den Charme von Altem und Ungeschliffenem schätzt und Wert auf Souveränität im eigenen Haus legt, findet hier die perfekte Leinwand für sein Konzept.
________________________________________
WICHTIGE HINWEISE
• Virtuelle Besichtigung: Auf Wunsch senden wir Ihnen gerne einen Link zu einer 360°-Tour, damit Sie die Räumlichkeiten vorab digital erkunden können.
• Grundrisse: Die beigefügten Grundrisse sind handgezeichnet und dienen der Veranschaulichung der Aufteilung; sie sind nicht maßstabsgetreu.
• Bildmaterial: Die Fotos können digital nachbearbeitet oder unter Einsatz von KI optimiert worden sein.
Nebenkosten: 350 € pro Monat
Provisionspflichtig: ja
Provision: 2,38 Kaltmieten (inkl. MwSt.) inkl. MwSt.
Etagenanzahl: 3
Küche: Einbauküche
Keller: ja
Unsere Vermittlungsgebühr beträgt 2,38 Kaltmieten inkl. Mehrwertsteuer bei Abschluss des Mietvertrages.
Das könnte Ihnen auch gefallen
TOP - LADENLOKAL / RESTAURANT IN 1A LAGE AUF DEM KÖLNER RUDOLFPLATZ
Bezner Immobilien GmbH
Herr Armin Bezner
Bonner Straße276
50968 Köln
Telefon: +49 221 719 31 59
Fax: +49 221 719 31 60
50674 Köln
Nordrhein-Westfalen




























