Köln:
KERNSANIERTE ALTBAU DACHTERRASSEN 5 ZIMMER MAISONETTE WOHNUNG AM ERZBERGERPLATZ
Objekt-Nr.: 2183 - 2

Dachterrasse Foto 1

Dachterrasse Foto 2

Atelier

offene Küche Foto 1

offene Küche Foto 2

Balkon Foto 1

Balkon Foto 2

Wohnzimmer

Schlafzimmer

Gästezimmer

Kinderzimmer

Wannebad mit Dusche

Duschbad

Flur

Diele

Erzbergerplatz

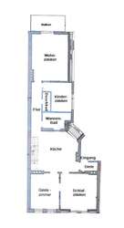
Grundriss Ebene 1 - 3.OG

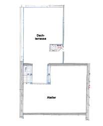
Grundriss Ebene 2 - 4.OG


















Preis:
1.195.000 €
Wohnfläche ca.:
148 m²
Zimmeranzahl:
5
Traumhafte Dachterrassen Altbau 5-Zimmer-Maisonettewohnung
Diese außergewöhnliche 5-Zimmer-Maisonettewohnung mit Dachterrasse wurde 2023 hochwertig und umfassend kernsaniert. Sie befindet sich im 3. und 4. Obergeschoss eines historischen Altbaus und ist über das großzügige Treppenhaus bequem zu erreichen. Die Wohnung liegt in einmaliger Lage am grünen Erzbergerplatz.
Schon beim Betreten beeindruckt die Wohnung durch die großzügige, zentral gelegene Wohnküche – das Herzstück des Grundrisses. Moderne Architektur verbindet sich hier mit klassischem Altbau-Charme.…
Hohe Decken, edler Parkettboden und Kassettentüren treffen auf eine klare, moderne Gestaltung und schaffen eine lichtdurchflutete, elegante Atmosphäre. Durch die großen Fensterflächen eröffnen sich herrliche Ausblicke in den begrünten Innenhof sowie auf den Erzbergerplatz mit seinem alten Baumbestand.
Ein besonderes Highlight ist das Atelier im 4. Obergeschoss mit seiner beeindruckenden Raumhöhe, den sichtbaren Dachbalken und dem Zugang zur spektakulären Dachterrasse über den Dächern von Köln. Hier vereinen sich Altbau-Flair und moderne Architektur auf ideale Weise.
Für zusätzlichen Wohnkomfort sorgen weiß verputzte Wände mit glattem Finish, mehrere klimatisierte Räume sowie Anschlüsse für TV und Netzwerk.
Die individuelle Grundrissgestaltung bietet vielfältige Nutzungsmöglichkeiten. Neben der großzügigen Wohnküche stehen weitere Räume sowie Balkon und Terrasse zur Verfügung, die reichlich Platz für einen entspannten Aufenthalt bieten.
Die Wohnung erstreckt sich über zwei Ebenen und ist wie folgt aufgeteilt:
1. Ebene (3. Obergeschoss)
* Eingang, Diele
* große offene Wohnküche mit Treppe zur 2. Ebene
* Schlafzimmer
* Gästezimmer
* Kinderzimmer
* Wohnzimmer mit Zugang zum Balkon
* modernes Wannenbad mit Dusche, WC und Fenster
* weiteres Duschbad mit WC
2. Ebene (4. Obergeschoss)
* Atelier mit Zugang zur großzügigen Dachterrasse
Hier erwartet Sie eine Wohnung der Extraklasse – mit historischem Charme und modernem Wohnkomfort.
Bitte beachten Sie: Die Grundrisse dienen lediglich der Veranschaulichung. Dachschrägen sind nicht eingezeichnet, Abweichungen sind möglich.
Auf Wunsch senden wir Ihnen gerne einen Link zur 360°-virtuellen Besichtigung.
Wohnungstyp: Maisonette
Etage: 3
Etagenanzahl: 3
Provisionspflichtig: ja
Provision: 3,57 % Provision vom Kaufpreis
Küche: Einbauküche
Anzahl Schlafzimmer: 4
Anzahl Badezimmer: 2
Balkon: 1
Terrasse: 1
Denkmalschutzobjekt: ja
Gäste-WC: ja
Keller: Abstellraum
Klimaanlage: ja
Letzte Modernisierung/ Sanierung: 2023
Baujahr: 1912
Bezugsfrei ab: nach Absprache
Heizung: Zentralheizung
Befeuerungsart: Gas
Energieausweistyp: Dieses Gebäude unterliegt nicht den Anforderungen der GEG
3,57 % Käufer-Provision inkl. MwSt. vom beurkundeten Kaufpreis, verdient und fällig mit notarieller Beurkundung des Kaufvertrages. Wir haben einen provisionspflichtigen Maklervertrag in gleicher Höhe mit dem Verkäufer abgeschlossen (§ 656 c BGB).
Das könnte Ihnen auch gefallen
Bezner Immobilien GmbH
Herr Armin Bezner
Bonner Straße276
50968 Köln
Telefon: +49 221 719 31 59
Fax: +49 221 719 31 60
50733 Köln
Nordrhein-Westfalen




















































