Siegburg:
TRAUM - TERRASSENMAISONETTE: Flexibel durch 2 EINGÄNGE – wandelbar für alle LEBENSSITUATIONEN
Objekt-Nr.: 2241

große Terrasse - Ebene 2

große Terrasse - Ebene 2

Arbeitszimmer - Ebene 2

Diele - Ebene 2

Duschbad Ebene 2

Gästezim. bzw. Küche -Ebene 2

Balkon - Ebene 2

Terrasse - Ebene 1

Wohnzimmer - Ebene 1

Küche - Ebene 1

Diele - Ebene 1

Treppe

Arbeitszimmer - Ebene 1

Schlafzimmer - Ebene 1

Ankleide - Ebene 1

Duschbad - Ebene 1

Gäste WC - Ebene 1

Ansicht Haus

anliegender Park

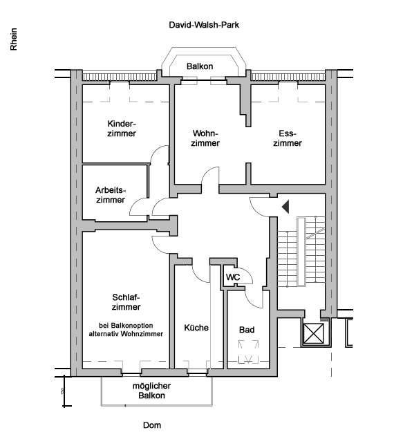
Grundriss Ebene 1 im 3.OG

Grundriss Ebene 2 im 4.OG





















Preis:
795.000 €
Wohnfläche ca.:
183 m²
Zimmeranzahl:
5
Traumhafte Terrassen-Maisonette in traumhafter Lage im Stadtcarré von Siegburg.
Ideal als großzügiges Familiendomizil oder Mehrgenerationenlösung – dank zwei separater Eingänge.
Willkommen in Ihrer neuen traumhaften Wohnung mit traumhaftem Blick von den zwei großzügigen Terrassen.…
Diese exklusive Maisonette-Wohnung vereint modernes Wohnen mit architektonischer Raffinesse und bietet auf zwei Ebenen nicht nur höchsten Komfort, sondern auch eine seltene Flexibilität: Dank zweier separater Eingänge lässt sich die Wohnung sowohl als großzügige Maisonette nutzen als auch in zwei eigenständige Wohneinheiten aufteilen – ideal für Mehrgenerationen, Gäste oder zur Kombination von Wohnen und Arbeiten.
Die Wohnung befindet sich in der 3. und 4. Etage eines gepflegten Mehrfamilienhauses aus dem Jahr 2006. Die solide, massive Bauweise sowie der durchdachte Grundriss schaffen ein Zuhause, das sich Ihren Lebensphasen anpasst.
________________________________________
Wohnen auf zwei Ebenen – mit Weitblick, Licht und Privatsphäre
Ein gläserner Personenaufzug bringt Sie bequem bis vor Ihre Wohnungstür im 3. Obergeschoss. Hier empfängt Sie eine großzügige Diele mit praktischem Einbauschrank sowie einer separaten Abstellkammer, die über einen Waschmaschinenanschluss verfügt. Von hier aus führt eine elegante Treppe mit Fenster und Glasabtrennung in das 4. Obergeschoss – hell, offen und stilvoll.
Die Besonderheit: Das 4. Obergeschoss verfügt zusätzlich über einen separaten Wohnungseingang über das Treppenhaus, wodurch sich diese Ebene bei Bedarf völlig autark nutzen lässt. Damit ergeben sich vielfältige Möglichkeiten – vom Mehrgenartionenkonzept bis zur Teilvermietung.
Wichtig zu wissen: Die gesamte Wohnung verbindet sich über beide Ebenen zu einem großzügigen, offenen Wohnraum – dennoch bietet die Aufteilung maximale Flexibilität.
________________________________________
Ebene 1 im 3. Obergeschoss:
• Großzügiges Wohnzimmer mit direktem Zugang zur Terrasse
• Moderne Einbauküche, praktisch erreichbar vom Wohnzimmer
• Gäste-WC
• Modernes Duschbad
• Schlafzimmer mit eigenem Zugang zur Terrasse und angrenzendem Ankleidezimmer
• Arbeitszimmer mit ebenfalls direktem Terrassenzugang
• Sonnige Terrasse mit Traumblick
• Diele mit Einbauschrank und Abstellkammer
• Elegante Treppe mit Fensterfront ins 4. Obergeschoss
Diese Ebene bildet das Herzstück der Wohnung – großzügig, lichtdurchflutet und ideal für komfortables Wohnen auf einer Ebene.
________________________________________
Ebene 2 im 4. Obergeschoss:
Die zweite Wohnebene ist sowohl über die interne Treppe als auch über einen separaten Wohnungseingang erschlossen – ideal für ein eigenständiges Apartment innerhalb der Wohnung. Die Räume lassen sich flexibel nutzen – ob als private Rückzugsebene, Einliegerwohnung, Büroetage oder Gästebereich.
• Großzügiges Arbeitszimmer mit direktem Zugang zur Dachterrasse mit Panoramablick
• Modernes Duschbad mit Fenster
• Gästezimmer, das derzeit als zweite Küche genutzt wird, mit Zugang zu einem zusätzlichen Balkon
• Dachterrasse mit einmaligem Blick über Siegburg und zur Abtei Michaelsberg
• Separater Eingang über das Treppenhaus – ideal für autarke Nutzung
Diese Etage lässt sich völlig unabhängig gestalten – mit dem Komfort einer vollständigen Einheit. Auch der Umbau des aktuell als Küche genutzten Zimmers zurück zum Gästezimmer ist problemlos möglich.
Wohnungstyp: Maisonette
Etage: 3
Provisionspflichtig: ja
Provision: 2,38 % Provision vom Kaufpreis
Küche: Einbauküche
Anzahl Schlafzimmer: 3
Anzahl Badezimmer: 2
Balkon: 1
Gäste-WC: ja
Keller: ja
Fahrstuhl: ja
Anzahl der Parkflächen: 1 x Tiefgarage, pro Stück 25.000 €
Baujahr: 2006
Bezugsfrei ab: sofort oder nach Absprache
2,38 % Käufer-Provision inkl. MwSt. vom beurkundeten Kaufpreis, verdient und fällig mit notarieller Beurkundung des Kaufvertrages. Wir haben einen provisionspflichtigen Maklervertrag in gleicher Höhe mit dem Verkäufer abgeschlossen (§ 656 c BGB).
Das könnte Ihnen auch gefallen
Bezner Immobilien GmbH
Herr Armin Bezner
Bonner Straße276
50968 Köln
Telefon: +49 221 719 31 59
Fax: +49 221 719 31 60
53721 Siegburg
Rhein-Sieg-Kreis
Nordrhein-Westfalen




















































