Köln:
TOP - LADENLOKAL / RESTAURANT IN 1A LAGE AUF DEM KÖLNER RUDOLFPLATZ
Objekt-Nr.: 2242

Ansicht Rudolfplatz

Mietpreis zzgl. NK:
4.000 € pro Monat
Gesamtfläche ca.:
90 m²
Verkaufsfläche ca.:
55 m²
LADENLOKAL / RESTAURANT IN TOP-LAGE AM RUDOLFPLATZ
Dieses repräsentative Ladenlokal befindet sich in einem Wohn- und Geschäftshaus an einem der meistfrequentierten Standorte Kölns – direkt am Rudolfplatz.
Umgeben von Gastronomie, Einzelhandel und Dienstleistungsangeboten bietet die Lage ideale Voraussetzungen für eine starke Kundenfrequenz, langfristige Kundenbindung und optimale Sichtbarkeit. Dank der prominenten Lage und großzügigen Schaufensterflächen verfügt das Objekt über eine hervorragende Werbewirksamkeit.
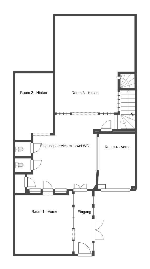
Die Gesamtfläche von ca. 90 m² verteilt sich auf drei Ebenen: Erdgeschoss, Obergeschoss und Keller. Derzeit wird das Objekt als Ladenlokal genutzt, in der Vergangenheit jedoch auch gastronomisch betrieben – inklusive Außengastronomie. (Hinweis: Es besteht kein Abluftsystem bzw. externe Belüftung.)…
Das Objekt besticht durch ein modernes, hochwertiges Erscheinungsbild, hohe Decken im Erdgeschoss sowie große Fensterfronten, die für eine helle, freundliche Atmosphäre sorgen.
Highlights:
- Attraktive Lage mit hoher Sichtbarkeit
- Großzügige Schaufensterflächen
- Helle, moderne Räumlichkeiten mit hoher Decke im EG
- Flexible Nutzung als Ladenlokal oder Gastronomie (ohne Abluftanlage)
- Gute Aufteilung auf drei Ebenen
Raumaufteilung:
- Keller ca. 22 m²: Nebenfläche und ein WC
- Erdgeschoss ca. 25 m²: Verkaufs.- Gastronomiefläche mit Treppe zu Keller und OG
- Obergeschoss ca. 43 m²: Verkaufs.- Gastronomiefläche und zwei weitere WC-Anlagen
Besichtigung:
Wir bitten um diskretes Verhalten vor Ort. Besichtigungen sind ausschließlich nach vorheriger Absprache mit uns möglich.
Auf Wunsch lassen wir Ihnen gerne ein ausführliches Exposé mit Fotos, Grundrissen und einer virtuellen 360°-Besichtigung zukommen.
Nebenkosten: 250 € pro Monat
Provisionspflichtig: ja
Provision: 2,38 Kaltmieten (inkl. MwSt.)
Kaution: 3 Kaltmieten
Fußweg zu Öffentl. Verkehrsmitteln: 1 Minute(n)
Fahrzeit zum nächsten Hauptbahnhof: 5 Minute(n)
Fahrzeit zur nächsten BAB: 5 Minute(n)
Fahrzeit zum nächsten Flughafen: 15 Minute(n)
Heizung: Zentralheizung
Energieausweistyp: Dieses Gebäude unterliegt nicht den Anforderungen der GEG
Bei Abschluss des Mietvertrages entsteht unsererseits gegenüber dem Mieter ein Provisionsanspruch in Höhe von 2,38 Kaltmieten einschl. Mehrwertsteuer.
Das könnte Ihnen auch gefallen
LOFT mit INDUSTRIECHARME im HISTORISCHEN UMFELD von BENSBERG
Urbanes Solitär-Loft - DAS HAUS im HOF - im BELGISCHEN VIERTEL
Bezner Immobilien GmbH
Herr Armin Bezner
Bonner Straße276
50968 Köln
Telefon: +49 221 719 31 59
Fax: +49 221 719 31 60
50674 Köln
Nordrhein-Westfalen






































