Bergisch Gladbach:
 LOFT mit INDUSTRIECHARME im HISTORISCHEN UMFELD von BENSBERG 					
					
              Objekt-Nr.: 2212 - 4          
				
Loftbereich vorne

Loftbereich vorne

Loftbereich hinten unrenoviert

historisches Foto

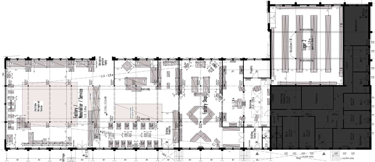
Beispiel Aufteilung

Grundriss Loft mit Lager






Mietpreis zzgl. NK:
 Preis auf Anfrage
Gesamtfläche ca.:
 959 m²
Büro-/Praxisfläche ca.:
 750 m²
       Loft mit historischem Industriecharme.
Hier wartet auf Sie ein Loft mit einzigartigem Flair, ein individuelles Bauwerk für ein einzigartiges Umfeld. Attraktive Architektur, eine traumhafte Dimension einer Gewerbefläche in architektonisch ansprechende Lage und Umfeld. Eine unverwechselbare Architektur und bereichernd für Bensberg. Entdecken Sie eine einzigartige Immobilie im Herzen eines historischen Ensembles, vereint mit architektonisch reizvollen Neubauten. Dieses historische Loft liegt eingebettet zwischen hochwertiger Wohn- und Gewerbeimmobilien und verbindet den Charme vergangener Zeiten mit der Moderne.…
    
       Das Loft mit seinem historischen Industriecharme verfügt über PKW-Stellplätze, die bequem durch eine Durchfahrt zu erreichen sind. Es können bis zu 8 PKW-Stellplätze optional für jeweils 50,- Euro/monatlich angemietet werden. Bequem gelangt man in das Loft über den Eingang im ruhigen Innenhof. 
Schon beim Betreten von dem Loft wird ein einmaliger Eindruck vermittelt, dieser wird durch die hohen Decken, die zahlreichen bzw. großflächigen Fensterflächen, dem typischen Charme einer alten Fabrikationshalle und den daraus resultierenden einzigartigen Loftcharakter verstärkt. Die zahlreichen und teilweise großflächigen Fensterflächen lassen das Loft angenehm hell erscheinen und geben den Blick frei auf das historische Umfeld.
Das Objekt ist in eine historische Fabrikationshalle, die renoviert wird, mit Toiletten versehen wird, Eingangstüren überarbeiten werden usw. Weitere Ausstattung und Änderungen z.B. Wände können gerne unter Absprache erfolgen.
Hier wartet auf Sie eine neue Dimension, eine Immobilie in einem einzigartigen Umfeld. Nutzen Sie diese Gelegenheit, um Ihre Geschäftsideen in einem Umfeld voller Geschichte und Prestige zu verwirklichen.
(siehe Fotos – von einem fertiggestellten vergleichbaren Objekt und dem aktuellen Zustand vor der Renovierung)
Aufteilung:
Aktuell ist das Loft noch nicht unterteilt.
(siehe Grundriss)
Verhalten Sie sich bitte diskret, vor Ort Besichtigungen sind nur mit unserer Absprache möglich.
Das Loft hat eine Gesamtfläche von ca. 791 m². Das Loft kann ab einer Fläche von ca. 275 m² angemietet werden. An dem Loft angrenzend ist noch eine Lagerfläche mit einer Größe von ca. 168 m². Diese kann noch zusätzlich angemietet werden. 
Auf Wunsch lassen wir Ihnen gerne eine 360° virtuelle Besichtigung zukommen.
    
Nebenkosten: 2,50 € pro Monat
Provisionspflichtig: ja
Provision: 2,38 Kaltmieten inkl. MwSt.
Kaution: 3 Kaltmieten
Letzte Modernisierung/ Sanierung: 2025
Zustand: modernisiert
Befeuerungsart: Gas
Energieausweistyp: Energieausweis liegt zur Besichtigung vor
Unsere Vermittlungsgebühr beträgt 2,38 Kaltmieten inkl. Mehrwertsteuer bei Abschluss des Mietvertrages.
Das könnte Ihnen auch gefallen
TOP - LADENLOKAL / RESTAURANT IN 1A LAGE AUF DEM KÖLNER RUDOLFPLATZ
LOFT mit INDUSTRIECHARME im HISTORISCHEN UMFELD von BENSBERG
Bezner Immobilien GmbH
Herr Armin Bezner
Bonner Straße276
50968 Köln
Telefon: +49 221 719 31 59
Fax: +49 221 719 31 60
51429 Bergisch Gladbach
Rheinisch-Bergischer Kreis
Nordrhein-Westfalen
 
							 
		
		
		 
           
          






















